Kintastie 16

Huippuluokan omakotitalo Oulun ytimeen

Hintta, Oulu

Talo A

3H + OLOKEITTIÖ + S + KHH + varasto
110/115m² + lämmin varasto 14 m²


Talo B

3H + OLOKEITTIÖ + S + KHH + varasto
110/115m² + lämmin varasto 14 m²
 
Arvioitu valmistuminen 05/2026
Työt käynnissä.
Rakennamme kohteen täysin valmiiksi. 
Valmis muuttokunnossa luovutettavaksi 05/2026
 

Haluatko lisätietoja tai varata oman kotisi?

Tasokas omakotitalo arjen luksusta arvostaville

Toteutamme tämän uniikin ja tasokkaan kaksikerroksisen omakotitalon omalle tontilleen arvostetulle alueelle Oulun Hintan kaupunginosaan. Kintastie 16 rakentuvassa kodissa yhdistyy tyylikäs arkkitehtuuri, huolella valitut materiaalit ja energiatehokkaat ratkaisut. Tässä kodissa asut lähellä palveluja, kouluja ja ulkoilumahdollisuuksia – kuitenkin rauhallisessa ja viihtyisässä ympäristössä keskellä Oulua.

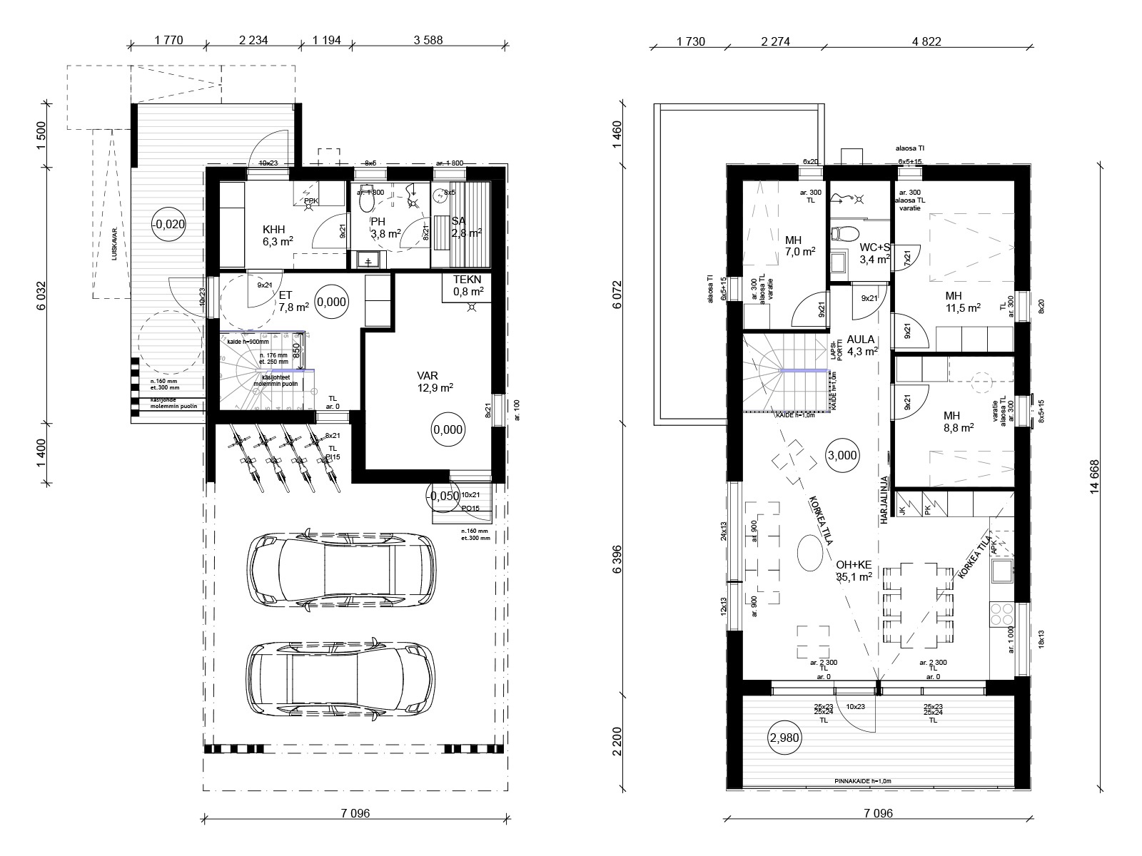
Sisäänkäynti, kodinhoitohuone ja saunatilat sijaitsevat pohjakerroksessa. Kaikki kolme makuuhuonetta ja olokeittiö on sijoitettu yläkertaan. Olokeittiön korkea katto, isot ikkunat ja suuri lasiseinä tuovat tilaan paljon valoa ja avaruutta. Lasiseinän kautta avautuu käynti tilavalle parvekkeelle. Kahden auton autokatos ja katoksen yhteydessä oleva lämmin varasto tuovat lisämukavuutta asumiseen.

Oman tontin ja maalämmön ansiosta tässä kodissa asuminen on todella huoletonta ja edullista!

Miksi valita Elekia Oy:n erillistalo?

Yksityisyys ja huolettomuus: Nauti omakotitalon rauhasta taloyhtiön tarjoamalla vaivattomuudella.

Nykyaikainen design: Laadukkaat materiaalit, tyylikäs viimeistely, korotetut olohuoneet ja suuret ikkunat upealla niittynäkymällä

Toimivat tilat: Erillinen WC, kodinhoitohuone, kylpyhuone ja sauna jokaisessa kodissa.

Oma tontti: Ei vuokravastikkeita, täysi omistus

Edullinen maalämpö: Ekologinen ja kustannustehokas lattialämmitys

Autokatos ja lämmin varasto: Autokatos ja varasto saman katon alla talon yhteydessä

Kannattava sijoitus: Korvenkylän kehittyvä alue ja uudet tasokkaat kodit tarjoavat mahdollisuuden arvonnousuun

Viihtyisä sijainti: Terassit ilta-aurinkoon päin ja puistomaiset näkymät niitylle

Havainnekuvat ovat viittellisiä.

Pohjakuva

Kiinnostuitko?
Tämä kohde on myynnissä.
Jätä yhteystietosi niin otamme yhteyttä.

Hintta – Viihtyisä ja perheystävällinen

Hintta on rauhallinen ja vehreä kaupunginosa Oulussa, noin kolmen kilometrin päässä keskustasta. Alue koostuu pääosin pientaloista ja tarjoaa viihtyisän asuinympäristön erityisesti perheille. Hintassa on päiväkoti, koulu, lähikauppa sekä hyvät julkiset liikenneyhteydet. Luonto ja ulkoilumahdollisuudet ovat lähellä, mikä tekee alueesta suositun ja arvostetun asuinpaikan.

palvelut

Palvelut

Kauppa
Sale Hintta 400 m
Citymarket Rusko 2 km

Päiväkoti
Hintan päiväkoti 100 m

Koulu
Hintan koulu 200 m
Laanilan koulu 650 m 

harrastukset

Harrastukset

Kuntosali 400 m

Hovisuon urheilupuisto 500 m

Ruskotunturi 6 km

Kulkuyhteydet

Lähin linja-autopysäkki 400 m
Hintan päiväkoti

Oulun keskusta 4,8 km

Kohteen sijainti kartalla

Jaa kohde somessa:
Facebook
Twitter
LinkedIn
WhatsApp